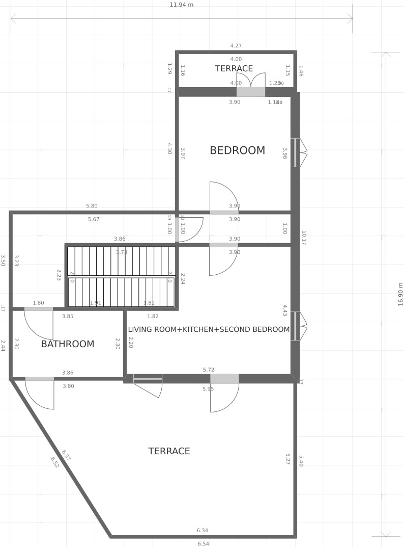
Franciás eleganciájú 2 szobás 56 nm-es, 4 főnek is kényelmes apartman. A külön bejáratú apartman a villa 1. emeletén található, mely a közös használatú előszobán és belső lépcsőn érhető el. Az apartman egy kis előszobából, az ebből nyíló, 2 egymással szemben lévő szobából és egy tágas zuhanyzós fürdőszobából áll. Mindkét szobához tartozik egy-egy terasz. A hálószoba 8 nm-es terasza a Gellért hegyre, a városra, a Budai hegyekre és villa saját mesés rózsakertjére néz. Ebben a szobában íróasztalt is elhelyeztünk, így az Home-Office dolgozószobaként is használható. Az apartman másik szobája étkezőkonyhás nappaliként és hálóként is használható. Innen nyílik az óriási 30 nm-es terasz, melyet stílusos teraszbútorokkal rendeztünk be. Ebben a szobában egy nagy kényelmes kanapéágy áll a vendégek rendelkezésére és itt plusz 2 fő számára kínálunk fekhelyet . Az apartman gépesített: klíma és radiátoros fűtés mindkét szobában, okos TV a nappaliban, indukciós főzőlap, mikrohullámú sütő, hűtőszekrény fagyasztórésszel, mosogatógép, vízforraló, kávéfőző, kenyérpirító a konyhában. Ugyanezen a szinten van az elegáns és tágas privát fürdőszoba egy 90 cm x 120 cm nagy zuhanyzóval. Innen is ki lehet menni az óriási teraszra.
Az apartman ablakai és teraszajtói rovarhálóval védettek, így nyáron akár nyitott ablaknál is élvezhető a csönd és a jó levegő.
A vendégek 10:00-18:00 óra között használhatják a házon belüli a közös mosóhelyiséget, ahol mosó- és szárítógép áll a rendelkezésükre. Kérésre vasalóállványt és vasalót is biztosítunk.



Önálló apartman
Amerikai konyha
Wi-Fi
Kert
Közös bejárat
Zuhanyzó
Dupla terasz
Indukciós tűzhely
Fűtés
Közös mosó- és szárítógép
Kilátás a kertre és hegyekre
Légkondicionálás
Mikrohullámú sütő
Íróasztal székkel
Mosogatógép
Szúnyogháló
Kenyérpirító
Vízforraló
Nespresso kávéfőző